Page suivante
Page précédente
Strasbourg (67200)

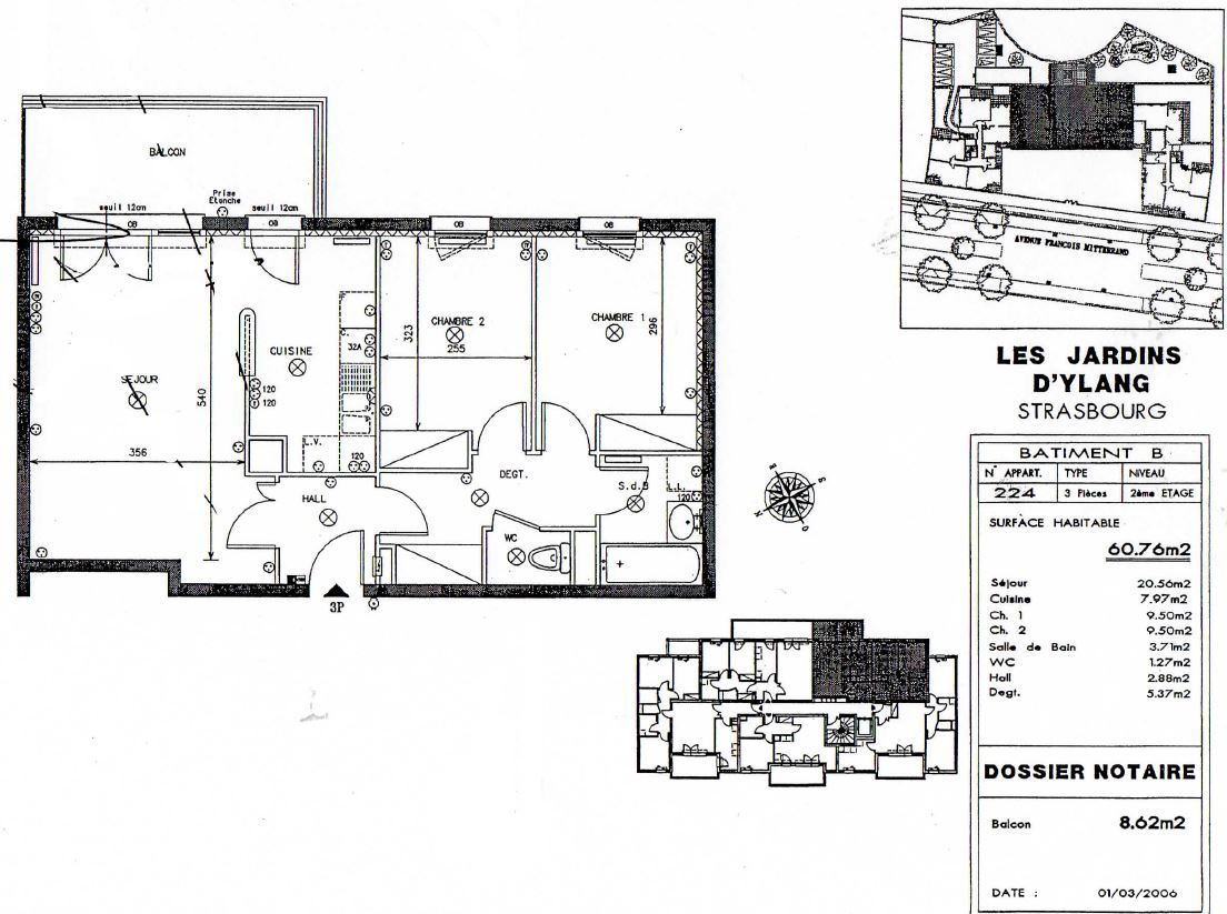
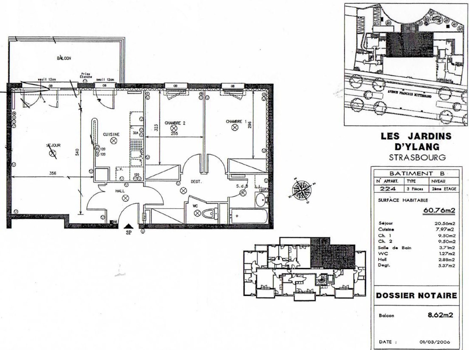
Appartement 3 pièce(s) 2 chambre(s) 60.4 m²

2
60.4 ㎡
Ascenseur
176 500 €
Réf 6723

Dans une résidence de 2006 proche d'Eckbolsheim, au 2e étage avec ascenseur, appartement 3 PIECES 60m² + balcon 9m² vue sur PARC exposition SUD-EST comprenant:

- séjour lumineux avec accès au balcon

- cuisine ouverte équipée

- 2 chambres avec placards

- 1 salle de bains avec sèche-serviette

- 1 WC séparé avec lave mains

- Nombreux rangements / placards toute hauteur

- Un garage fermé + cave en sous-sol

Actuellement loué échéance du bail 30/11/2026 (possibilité investisseur).


Les informations sur les risques auxquels ce bien est exposé sont disponibles sur le site Géorisques

Bilan énergétique

Diagnostics énergetiques
A propos de ce bien Caractéristiques de ce bien
  • Surface 60,40 m²
  • carrez 60,40 m²
  • séjour 20,35 m²
  • 2 chambre(s)
  • 1 salle(s) de bain
  • construit en 2005
  • cuisine américaine (équipée)
  • Chauffage trad_format_chauff_urbain : radiateur (gaz de ville)
  • 1 garage(s)
  • exposition Sud-Est
  • 2ème étage
  • 5 étage(s)
  • ascenseur
  • vue dégagée sur parc
  • cave
  • balcon
  • interphone

Info copro

Copropriété
  • Copropriété Oui
  • Lot n° 212
  • Nombre de lots 85
  • Quote part annuelle des charges 1 940 €
  • Statut du syndic Pas de procédure en cours

Financier

Informations financières
Prix de vente honoraires TTC inclus 176 500 €
Prix net vendeur 165 000 €
Prix de vente honoraires TTC exclus 165 000 €
Honoraires TTC à la charge acquéreur 6.97 %
Charges mensuelles 165 €
Taxe foncière annuelle 1 294 €

Simulation

Calcul des mensualités
* Champs obligatoires
Cabinet Immobilier DROMSON Agence